Дом 90 м² на участке 8 сот.

3 500 000руб.

Характеристики

  • Площадь участка: 8 сот.
  • Площадь дома: 90 м²
  • Этажей в доме: 1

Описание

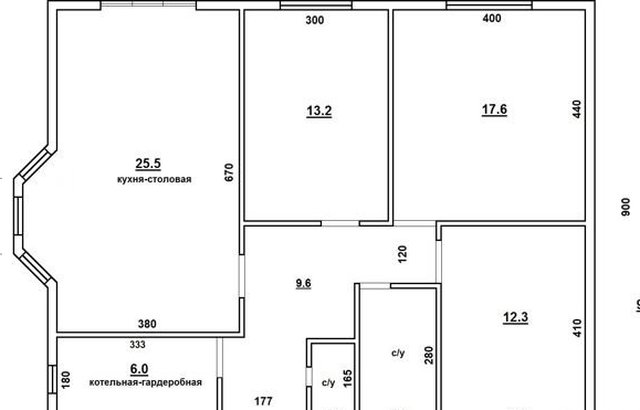
1 км от города. Новый дом в центре пос.Приморского (массив у коттеджного посёлка "БРИЗ" в северной части пос.Приморского, ул.Радужная, ул.Лучистая). Дом площадью 90 м2 (3 комнаты+кухня/гостинная) участок от 7 до 9 соток, ровный. Все коммуникации, газ, свет, городская вода. Доведение полной отделки: +400/500 т. руб. рядом продаются и другие планировки.

Адрес

Самарская область, Ставропольский район, поселок Приморский, Северный переулок, 7Б


Сеть городских порталов: Купить квартиру в Вологде